
Download Specs
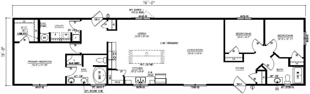
This unique layout ensures more privacy for the bedrooms while offering a contemporary open concept.
The kitchen and living room are the heart of this home and is the perfect space for your family and friends to gather and make memories! Keeping both rooms open to each other means you can keep an eye on your favorite show while cooking dinner or simply not having to remove yourself from the party to check the stove.
There’s plenty of space between the kitchen and master bedroom that could act as a home office with enough room for your desk and filing cabinet.
Tap a photo to explore the image gallery.