
Download Specs
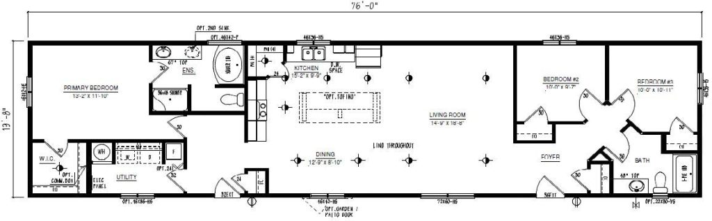
Introducing the revamped Sierra show home, where modern design meets practicality in a captivating 1,520 sq. ft. space. Offering 3 bedrooms and 2 bathrooms, this home is tailored for those seeking comfort and functionality. Step into the heart of the home – a spacious kitchen featuring trendy new colors, including a sage green island and wood-look two-tone cabinets. Perfect for culinary enthusiasts, the kitchen features a large island and corner pantry, offering ample storage and workspace for all your cooking needs.
Entertaining is a breeze with the open layout of the living room, kitchen and dining room, creating a seamless flow for gatherings and quality time with loved ones. The utility room impresses with its generous size, providing plenty of space for a stand-up freezer or additional storage, ensuring your home remains clutter-free and organized.
Retreat to the primary bedroom and indulge in the luxurious ensuite, complete with two vanities, a soaker tub and a walk-in shower. With a large window over the tub, natural light floods the space, creating the perfect space that makes getting ready a delight.
Quick Possession homes available in our following Communities: Meadows of Morinville.
Tap a photo to explore the image gallery.