
Download Specs
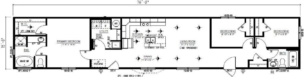
This is the perfect plan if you’re looking for a smaller home without sacrificing beautiful features. It is intentionally designed to make the most out of every corner.
With a large island, this open concept kitchen / dining room is perfect for entertaining guests. This plan still offers the flexibility of three bedrooms, whether it be for a young family or if you’re wanting a spare bedroom and flex room.
Quick Possession homes available in our following Communities: Meadows of Morinville.
Tap a photo to explore the image gallery.