
Download Specs
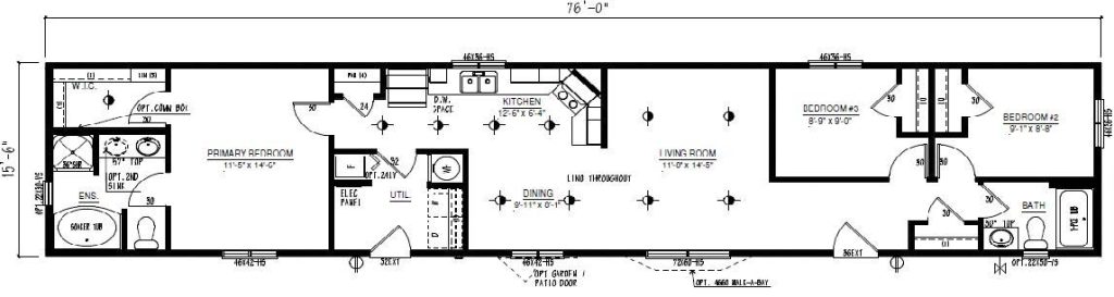
Welcome to the Birchwood! This 1,216 sq. ft. home is perfect for families with its 3 bedrooms and 2 bathrooms. We’ve given it a fresh new look with darker tones for a bold and modern feel. The semi-open concept design creates a roomy living area that’s great for hanging out or entertaining guests. The master bedroom is a cozy retreat with its own ensuite featuring a walk-in shower and a relaxing soaker tub. Come check out the Birchwood and see why it’s the perfect place to call home!
Quick Possession homes available in our following Communities: Meadows of Morinville.
Tap a photo to explore the image gallery.