
Download Specs
Living is easy in The Beaufort – where practicality meets luxury.
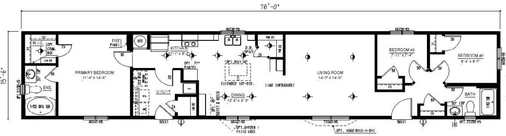
Walk into your new 1216. sq. ft. home with impressive storage solutions for your busy family.
The spacious kitchen is the hub in this home! You’ll find cleverly placed drawers and cabinets, a comfortable dining room and buffet hutch.
This economical plan will fit the most modest of budgets without sacrificing the quality you deserve.
Tap a photo to explore the image gallery.