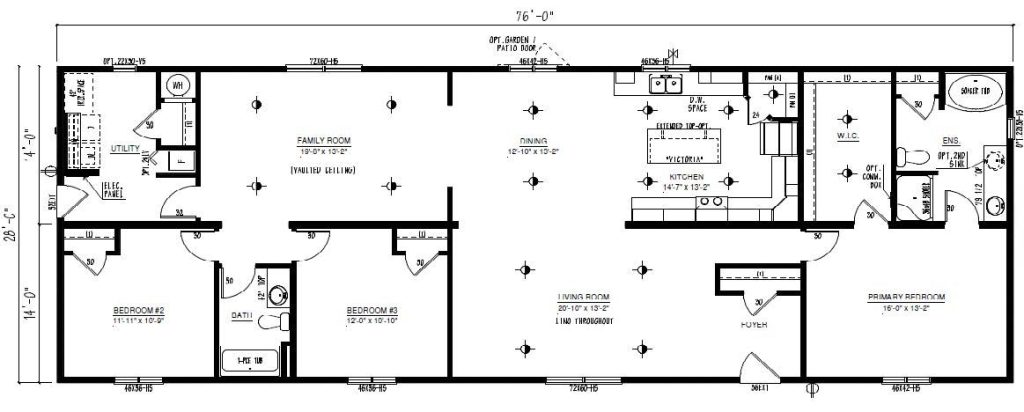
Roseglen


Subscribe to our mailing list