
Download Specs
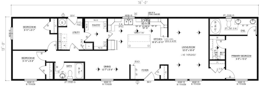
Meet the brand new Horizon, a 1,520 sq. ft. home designed to make everyday life feel easier. With 3 bedrooms, 2 bathrooms and a layout that just makes sense, this home is perfect for busy families and real routines. The welcoming front entry includes a built-in bench that’s ideal for shoes, bags and everything that comes and goes with daily life.
The kitchen is where this home really shines. A large pantry sits behind an optional hidden door for a clean, uncluttered look, with easy access from the utility room and a rear door that makes grocery days so much easier. A spacious island with pot-and-pan drawers adds storage where you actually need it, making cooking, hosting and everyday meals feel effortless.
The living room is bright and comfortable, filled with natural light. An optional garden door off the dining area makes it easy to step outside and enjoy summer evenings or let the kids run out to play. The primary bedroom offers a calm, private space with a spacious walk-in closet. The ensuite features a walk-in shower that’s perfect for winding down at the end of the day.
Tap a photo to explore the image gallery.