
Download Specs
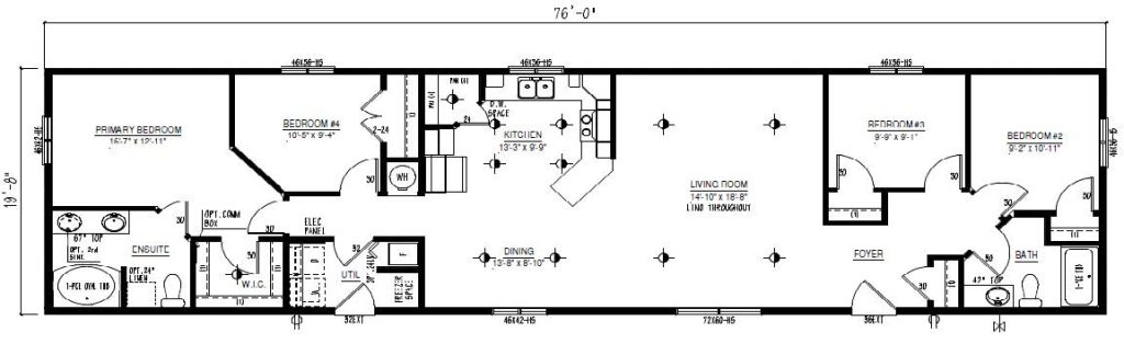
Welcome home to The Devonian. This plan beautifully marries the benefits of modular construction, flexibility and customization.
Walk into an open-concept design with thoughtfully placed storage solutions like a built-in entrance bench. Experience the power of attention to detail with Conmore interior doors, a spacious ensuite equipped with a linen closet and additional pot and pan drawers in the kitchen.
Take advantage of flexibility in this home by choosing between a fourth bedroom or a retreat off the master bedroom.
Tap a photo to explore the image gallery.