
Download Specs
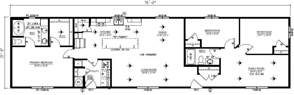
Welcome to the Crestview – a stunning show home that redefines modern family living. Boasting 1,672 square feet, this home presents an ideal blend of functionality and style. With 3 bedrooms and 2 bathrooms, including a luxurious primary suite featuring a spacious walk-in closet and an ensuite adorned with a large soaker tub and dual vanities, comfort and relaxation are paramount.
Step inside and discover the heart of the home, where a large living room and separate family room await, providing ample space for gatherings and everyday activities. The open-concept design seamlessly connects the dining room to the kitchen, where you’ll find a spacious island and convenient corner pantry, making meal prep a breeze. With additional windows strategically placed throughout, the Crestview show home is flooded with natural light, creating an inviting and airy atmosphere that welcomes you from the moment you step inside. We opted for a timeless palette of whites accentuated with a vibrant pop of blue to create an eye-catching decor package.
Tap a photo to explore the image gallery.